| Miejscowość | Katowice |
| Dzielnica | Śródmieście |
| Ulica | Kobylińskiego |
| Nr oferty | 60637 |
| Powierzchnia użytkowa | 51 |
| Liczba pokoi | 2 |
| Liczba pięter | 4 |
| Cena | 1 070 [zł] |
| Waluta | zł |
Opis wybranej oferty:
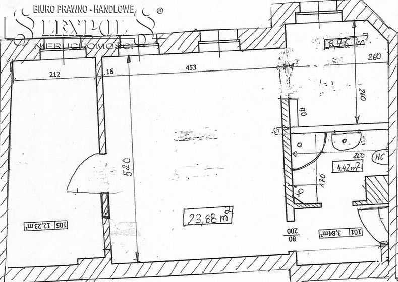
Mieszkanie do wynajęcia które znajduje się w Śródmieściu Katowic o powierzchni 51m, mieszkanie jest na parterze z co, składa się z dwóch ustawnych, przechodnich pokoi, kuchni, łazienki z wc w kaflach z kabiną prysznicową oraz przedpokoju. Na podłogach znajdują się kafle, Ogrzewanie c.o. (nowa kotłownia na cały blok), wymienione zostały okna, drzwi, wszystkie instalacje. Lokal całkowicie pusty. Czynsz najmu: 1070 PLN/m-c + media Kaucja 3X 1070 PLN Oferta godna zastanowienia. Niniejsze ogłoszenie nie stanowi oferty handlowej w rozumieniu przepisów Kodeksu Cywilnego. Za bezpieczeństwo transakcji odpowiada Doradca Prawny i Licencjonowany Pośrednik Artur Jakubczyk (licencja numer 2475). Więcej ciekawych ofert na stronie www.lexpol.pl Prowadząca ofertę Edyta Gąstalik tel. 602 646 910. Zapraszamy!!!
















